Restaurant mit großzügigen Biergarten sucht neuen Pächter

5 Fotos und Anhänge ansehen
Herres Immobilien
In der Olk 17, 54290 Trier
Frank Herres

Titlebild

Titlebild

Titlebild

Titlebild

Titlebild

Restaurant mit großzügigen Biergarten sucht neuen Pächter

Eckdaten

  • Art Restaurant
  • Lage 54290 Trier
  • Miete zzgl. NK 2.300,00
  • Gastronomische Fläche ca. 100
  • Gesamtfläche ca. 200
  • Bezugstermin 01.07.2025
  • Immobilien-ID 164
  • Provision 3,57 Kaltmieten inkl. MwSt.

Immobilie

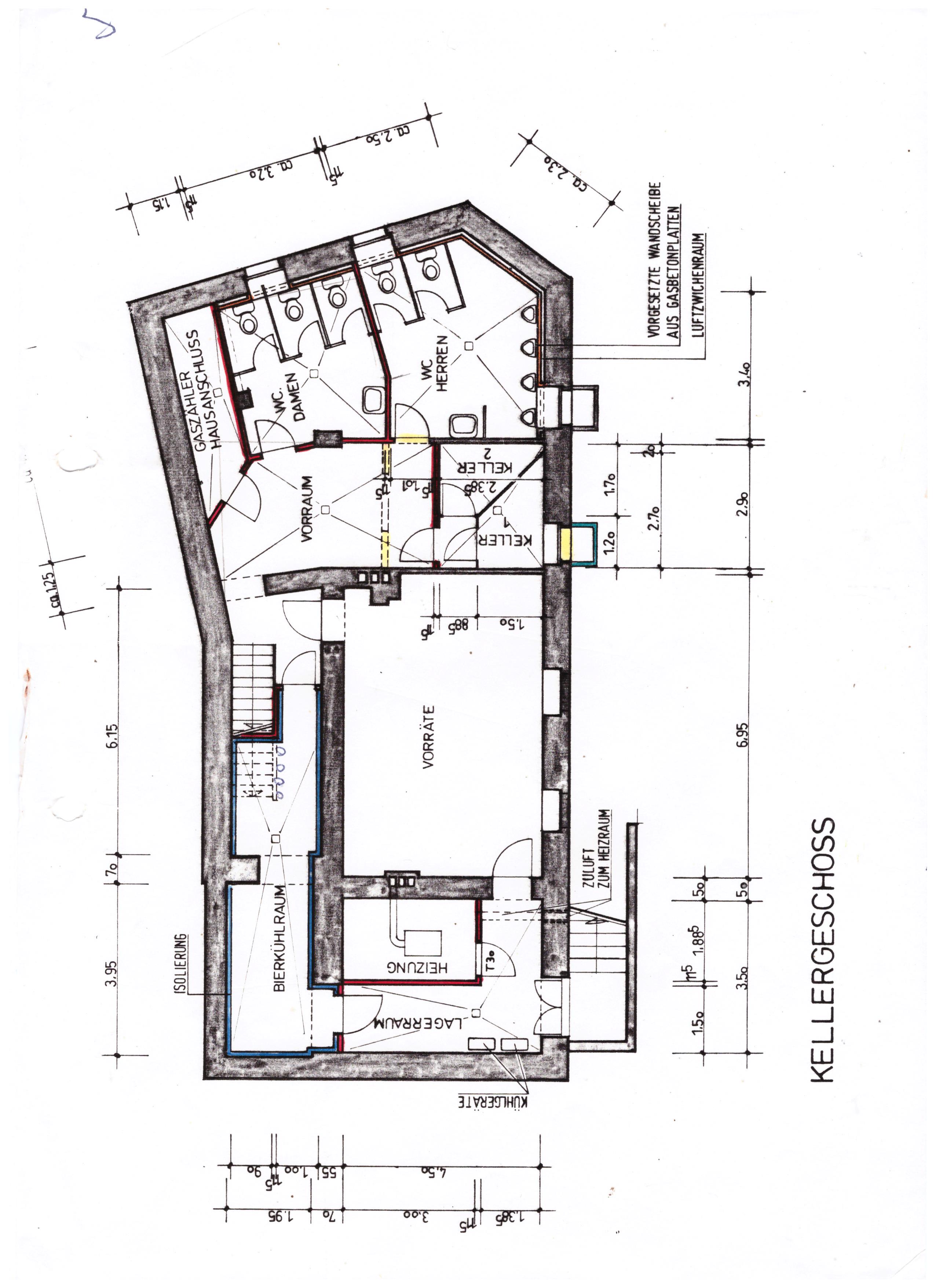
Die angebotene Gastronomieeinheit bietet im Gastraum inkl. Küche eine Fläche von ca. 100 m2, der Außenbereich (Biergarten inkl. Kiosk) verfügt über eine zusätzliche Fläche von ca. 400 m2. Das Untergeschoss mit gut 100 m2 (u.a. mit Toilettenanlagen, Kühlraum, Kellerflächen) rundet das Platzangebot des Objektes ab.

Hinweis: Keine Brauereibindung. Heizkosten sind nicht in NK-Vorauszahlung enthalten.

Nähere Informationen zu den genauen Mietkonditionen erhalten Sie gerne in einem persönlichen Gespräch und einer Vorortbesichtigung.

Alle Informationen zum Objekt beruhen auf den Angaben des Eigentümers beziehungsweise Dritter. Irrtümer und Zwischenvermietung vorbehalten. Gewähr für die Richtigkeit der Angaben kann daher nicht übernommen werden. Auch weisen wir darauf hin, dass telefonische und schriftliche Auskünfte unverbindlich sind. Eine Haftung jeglicher Art wird ausdrücklich ausgeschlossen.

Lage

Das Objekt befindet sich in unmittelbarer Nähe der Berufsschule im Zentrum von Trier.

Mit seinen gut 110.000 Einwohnern liegt Trier in der Mitte einer Talweitung des mittleren Moseltals mit dem Hauptteil am rechten Ufer des Flusses. Bewaldete und zum Teil mit Weinbergen besetzte Hänge steigen zu den Hochflächen an.

Bekannt ist Trier unter anderem durch seine vielen römischen Bauten, die bis heute gut erhalten sind und seit 1986 zum UNESCO-Weltkulturerbe zählen.

Trier ist Bischofsitz, Kultur-und Verkehrsmittelpunkt des Landes Rheinland-Pfalz, Universitätsstadt, Standort namhafter Industriebetriebe, Weinbau- und Weinhandelszentrum, Einkaufs-, Tourismus- und Tagungsstadt. Die Infrastruktur ist als sehr gut zu bezeichnen.

Der Flughafen Luxemburg ist in ca. 30 Minuten, Luxemburg Zentrum in knapp 40 Minuten und Flughafen Frankfurt/Hahn in gut 45 Minuten zu erreichen.

Wie können wir Ihnen behilflich sein?

Herzlichen Dank für Ihre Anfrage.

Wir werden diese so schnell wie möglich bearbeiten.

Wie können wir Ihnen behilflich sein?
* Pflichtfeld